Aktuelle Angebote
Hier geht's zum Bewerberbogen!Wohnen im Kapitänshaus - Wunderschöne barrierearme Erdgeschosswohnung in einem KfW-Effizienzhaus 40 Standard QNG+

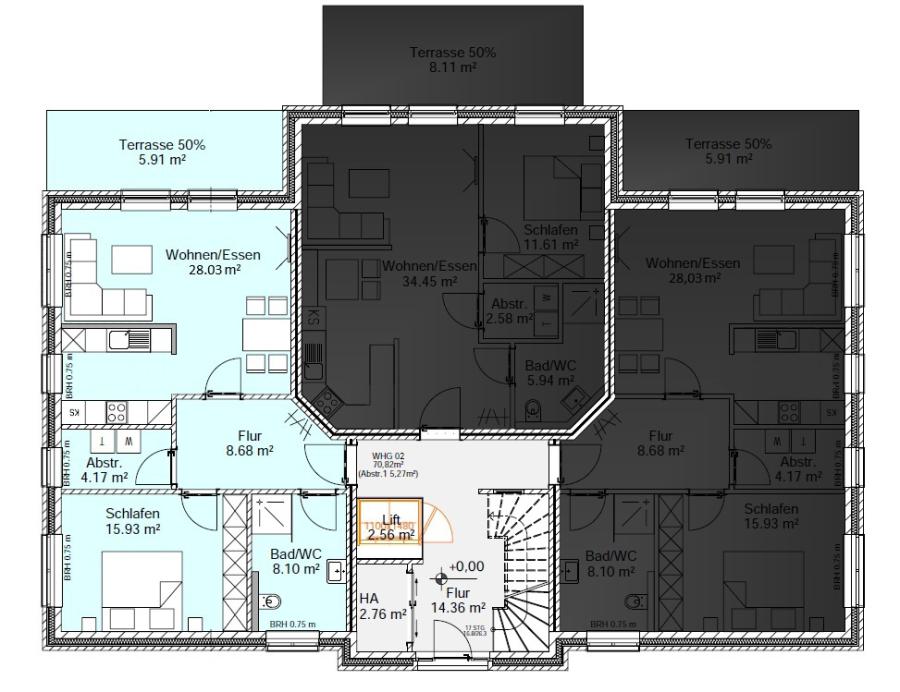
Molkereistr. 5, EG links
Im Stadtteil Süderneuland II - Molkereistr. 5 - entsteht ein hochmodernes Sechsfamilienhaus im Stile eines Kapitänshauses.
Das Gebäude erfüllt nicht nur den KfW Effizienzhaus-Standard 40, sondern geht noch einen Schritt weiter, indem es die anspruchsvollen Kriterien für das „Qualitätssiegel Nachhaltiges Gebäude Plus“ erfüllt.
Der Neubau überzeugt durch seine hohe Energieeffizienz und ein nachhaltiges Energiekonzept. Eine Erdwärmepumpe gewinnt Wärme aus dem Erdreich und verteilt sie über eine Fußbodenheizung gleichmäßig im gesamten Gebäude. Den dafür benötigten Strom liefert eine auf dem Dach installierte Photovoltaikanlage, deren Energie auch gespeichert wird, um in den Wintermonaten eine verlässliche Wärmeversorgung zu gewährleisten. Die Warmwasserbereitung erfolgt ebenfalls über die Erdwärmepumpe in Kombination mit einer Übergabestation. Für ein dauerhaft angenehmes Raumklima sorgen dezentrale Lüftungsanlagen mit Wärmerückgewinnung – effizient, komfortabel und umweltschonend zugleich.
Das Kapitänshaus verbindet durchdachte Ausstattung mit modernem Wohnkomfort. Ein Personenaufzug ermöglicht bequemen Zugang zum Obergeschoss, zusätzlich verfügt jede Wohnung verfügt über ein eigenes Balkonkraftwerk zur nachhaltigen Energiegewinnung. Dreifachverglaste Fenster mit elektrischen Außenjalousien sorgen für optimalen Wärme- und Schallschutz. Hochwertige Vinylböden, weiß gestrichene Wände und eine energiesparende LED-Deckenbeleuchtung schaffen ein helles, freundliches Wohnambiente. Abgerundet wird das Gesamtpaket durch einen separaten Abstellschuppen und einen zur Wohnung gehörenden Stellplatz.
Diese barrierearme Erdgeschosswohnung umfasst ca. 70,82 m² Wohnfläche und überzeugt durch eine gut geplante Raumaufteilung. Sie bietet ein helles Wohn- und Esszimmer mit offener Küche kombiniert, ein großzügiges Schlafzimmer, einen Flur sowie ein modernes Badezimmer mit ebenerdiger Dusche und WC. Das Badezimmer ist zusätzlich mit einem stilvollen Waschtischunterschrank und einem praktischen Spiegelschrank ausgestattet.
Auf der nach Südwesten ausgerichteten Terrasse genießen Sie sonnige Stunden und schaffen sich Momente der Entspannung im Alltag. Für Ihre Traumküche sind sämtliche Anschlüsse bereits vorbereitet – so können Sie Ihre individuellen Gestaltungsideen frei umsetzen. Gerne unterstützen wir Sie auf Wunsch bei der Planung.
Die Wohnung wird voraussichtlich im November 2026 bezugsfertig.
Das Gebäude erfüllt nicht nur den KfW Effizienzhaus-Standard 40, sondern geht noch einen Schritt weiter, indem es die anspruchsvollen Kriterien für das „Qualitätssiegel Nachhaltiges Gebäude Plus“ erfüllt.
Der Neubau überzeugt durch seine hohe Energieeffizienz und ein nachhaltiges Energiekonzept. Eine Erdwärmepumpe gewinnt Wärme aus dem Erdreich und verteilt sie über eine Fußbodenheizung gleichmäßig im gesamten Gebäude. Den dafür benötigten Strom liefert eine auf dem Dach installierte Photovoltaikanlage, deren Energie auch gespeichert wird, um in den Wintermonaten eine verlässliche Wärmeversorgung zu gewährleisten. Die Warmwasserbereitung erfolgt ebenfalls über die Erdwärmepumpe in Kombination mit einer Übergabestation. Für ein dauerhaft angenehmes Raumklima sorgen dezentrale Lüftungsanlagen mit Wärmerückgewinnung – effizient, komfortabel und umweltschonend zugleich.
Das Kapitänshaus verbindet durchdachte Ausstattung mit modernem Wohnkomfort. Ein Personenaufzug ermöglicht bequemen Zugang zum Obergeschoss, zusätzlich verfügt jede Wohnung verfügt über ein eigenes Balkonkraftwerk zur nachhaltigen Energiegewinnung. Dreifachverglaste Fenster mit elektrischen Außenjalousien sorgen für optimalen Wärme- und Schallschutz. Hochwertige Vinylböden, weiß gestrichene Wände und eine energiesparende LED-Deckenbeleuchtung schaffen ein helles, freundliches Wohnambiente. Abgerundet wird das Gesamtpaket durch einen separaten Abstellschuppen und einen zur Wohnung gehörenden Stellplatz.
Diese barrierearme Erdgeschosswohnung umfasst ca. 70,82 m² Wohnfläche und überzeugt durch eine gut geplante Raumaufteilung. Sie bietet ein helles Wohn- und Esszimmer mit offener Küche kombiniert, ein großzügiges Schlafzimmer, einen Flur sowie ein modernes Badezimmer mit ebenerdiger Dusche und WC. Das Badezimmer ist zusätzlich mit einem stilvollen Waschtischunterschrank und einem praktischen Spiegelschrank ausgestattet.
Auf der nach Südwesten ausgerichteten Terrasse genießen Sie sonnige Stunden und schaffen sich Momente der Entspannung im Alltag. Für Ihre Traumküche sind sämtliche Anschlüsse bereits vorbereitet – so können Sie Ihre individuellen Gestaltungsideen frei umsetzen. Gerne unterstützen wir Sie auf Wunsch bei der Planung.
Die Wohnung wird voraussichtlich im November 2026 bezugsfertig.
Objektart: Sechsparteienhaus mit Fahrstuhl
WE-Nr.: 123/1/5
Lage: Norden
Wohnfläche: 70,82 m²
Zimmer: 2
Baujahr: 2026 (Erstbezug)
Aufteilung: Wohn- Esszimmer mit offener Küche (ohne EBK) kombiniert, Schlafzimmer, Flur, Bad mit Dusche/WC, Abstellraum, Terrasse (Südwestlage)
Nettokaltmiete:
1.525,00€ (6 Genossenschaftsanteile a`250 € u. Eintrittsgeld 25 € - siehe auch Rubrik - Mitglied werden)
€
710,00
Nutzungsgebühr Wohnung
€
85,00
Heizkostenpauschale
€
25,00
Zuschlag Stellplatz
€
35,00
Zuschlag Abstellschuppen
€
15,00
Frischwasservorauszahlung (2 Erw.)
€
155,00
Betriebskostenvorauszahlung (2 Erw.)
€
1025,00
Gesamtmiete
Information zur Mitgliedschaft:1.525,00€ (6 Genossenschaftsanteile a`250 € u. Eintrittsgeld 25 € - siehe auch Rubrik - Mitglied werden)
zuzüglich: Strom (Energieversorger)
Zusätzliche Ausstattung: Dreifachverglaste Fenster mit elektrischen Außenjalousien
Hochwertiger Vinylbodenbelag
dezentrale Lüftungsanlage mit Wärmerückgewinnung/Allergiker geeignet
Terrasse in Südwestlage
Wärme und Warmwasserversorgung mittels einer innovativen Erdwärmepumpe
Photovoltaikanlage mit Speicher zur Versorgung der Wärmepumpe
LED – Deckenbeleuchtung
Bad mit Waschtischunterschrank und Spiegelschrank
Stellplatz mit separatem Abstellschuppen
Kabel-, Satelliten- und Glasfaseranschluss
Eigenes Balkonkraftwerk
Plattformlift
Hochwertiger Vinylbodenbelag
dezentrale Lüftungsanlage mit Wärmerückgewinnung/Allergiker geeignet
Terrasse in Südwestlage
Wärme und Warmwasserversorgung mittels einer innovativen Erdwärmepumpe
Photovoltaikanlage mit Speicher zur Versorgung der Wärmepumpe
LED – Deckenbeleuchtung
Bad mit Waschtischunterschrank und Spiegelschrank
Stellplatz mit separatem Abstellschuppen
Kabel-, Satelliten- und Glasfaseranschluss
Eigenes Balkonkraftwerk
Plattformlift
Mietbeginn: 01.11.2026
Stand: 12.03.2026






Etwas für Sie dabei?
Bei Interesse an unseren aktuellen Angeboten senden Sie uns bitte den ausgefüllten und unterschriebenen Bewerberbogen mit Angabe des gewünschten Objektangebotes zu. Gerne per E-Mail an: wohnung@buw-norden.de.
Für weitere Fragen stehen wir Ihnen gerne unter Tel: 04931/3185 zu Verfügung.
-Energieausweise liegen vor-